Products
当前位置:易游网页版_易游(中国)>产品展示 > 智能立体车库系列
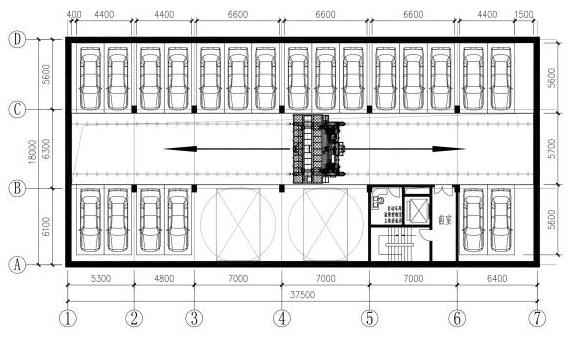
运行原理 采用巷道堆垛机将搬运机器上的车辆水平垂直移动到存车位,通过存取机构存取车辆。出入口通常设置垂直升降机,这种车库自动化程度很高,且全部封闭式建造,车辆安全性好。该车库类型主要适用于大型密集式存车
400-822-8286
13707400505
运行原理
采用巷道堆垛机将搬运机器上的车辆水平垂直移动到存车位,通过存取机构存取车辆。出入口通常设置垂直升降机,这种车库自动化程度很高,且全部封闭式建造,车辆安全性好。该车库类型主要适用于大型密集式存车。


网址:chartersssangyong.com
邮编:414300
服务热线:400-822-8286
销售热线:13707400505
电话:0730-3798128
传真:0730-3753717
邮箱:yuanruijx@163.com
总公司地址:湖南省临湘市三湾工业园
扫一扫,关注我们
扫一扫,手机访问
COPYRIGHT © chartersssangyong.com ALL RIGHTS RESERVED. 易游网页版_易游(中国) 版权所有